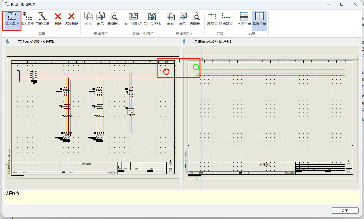
打开【起点终点管理】对话框。

在此对话框下可对不同图纸的电位或信号进行跳转连接,单击【插入单个】鼠标指针移至两张不同图纸上时,会自动捕捉图纸上的电位点并出现绿色圆标。选择【更换图纸1或2】【向前】或【向后】或【选择器】选出需要电位转移或信号跳转的两张图纸,绿色圆标分别去选择需要转移的电位。

点击添加完成后就会出现箭头样式的符号,并且在符号附近会有关联参考来表示跳转去哪一页图纸的哪一行哪一列。同时可以使用右键转至命令或者直接双击左键来进行跳转。
当然如果不满意交叉引用这个字体或格式,我们也可以在配置里修改:
在【电气工程】-【配置】-【文字】中可以找到起点终点箭头这一行,在这里可以修改字体格式、高度、颜色、坐标偏移编号格式等等。

详细的修改方法如下视频: